巨奢网 手表回收云资讯 宇舶价格 查看内容

这个110㎡的奶油风之家,已经靠颜值火了

2023-7-26 20:57| 发布者: 挖安琥| 查看: 250| 评论: 0

放大 缩小
简介:喜欢奶油风的人好像都有一颗柔软且热爱生活的心。而本案的屋主,恰好就是一位这样温暖的人,在对接过程中,她开朗风趣,且具有很高的审美,喜欢奶油风,希望自己的家不仅是自己和丈夫的放松疗愈之所,更希望三个孩子 ...



这个110㎡的奶油风之家,已经靠颜值火了


喜欢奶油风的人好像都有一颗柔软且热爱生活的心。

而本案的屋主,恰好就是一位这样温暖的人,在对接过程中,她开朗风趣,且具有很高的审美,喜欢奶油风,希望自己的家不仅是自己和丈夫的放松疗愈之所,更希望三个孩子能够在这个居所中感受到爱和陪伴,快乐健康的成长。

项目信息

地址:漳州

户型:三房

面积:110㎡

风格:奶油风


这个110㎡的奶油风之家,已经靠颜值火了


原始结构图


这个110㎡的奶油风之家,已经靠颜值火了

屋主需求:

1、要有充足的储物空间;

2、餐厅要大要舒适;

3、女孩房需要两张可爱的床;

4、保留两个卫生间。

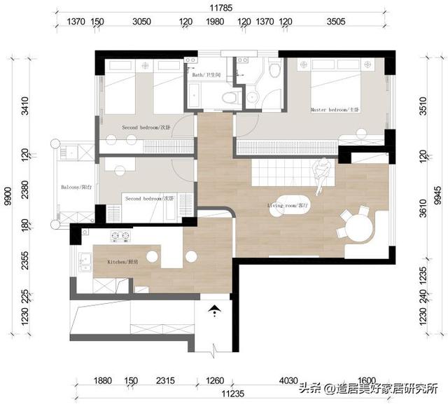
平面设计图


这个110㎡的奶油风之家,已经靠颜值火了

改造重点:

1、增加入户玄关,化解因户型改动后卫生间正对入户门的尴尬情况;

2、将原本位于玄关区域,又小又暗的餐厅改动至紧连客厅的阳台,使其变得温暖又明亮;

3、客厅做旋转楼梯的设计连接上下楼层,节省空间的同时并保持客厅通透;

4、挪用客厅部分面积至主卧,打造超大衣柜满足空间储物需求;

5、主卫面积缩小,扩大公卫面积,满足日常使用需求;

6、女孩房占用部分男孩房的面积,扩大可利用空间;

7、被占用的男孩房利用半高型榻榻米+楼梯踏步增加亮点。

玄关


这个110㎡的奶油风之家,已经靠颜值火了


这个110㎡的奶油风之家,已经靠颜值火了

推开门,就可以看柔和木砖上建立的半开放式奶白隔断墙,干净简约,以此来奠定奶油风的核心调性。

其次,由于本案一开始就将换鞋区设计在门外,所以,入户门内增设的玄关以美观性为主,功能性为辅。

设计时,摒弃了复杂的硬装设计手法,直接利用拱形门向下延伸的线条勾勒出正对门的奶白色隔断,希望屋主进门就能感受到这个区域所暗含的细节之美

隔断墙上设计的两道弧形墙洞,是为了对应玄关进入客厅上方的拱形门,而墙洞上安装的长虹玻璃,不仅能够化解入户门正对卫生间的尴尬,还能引入光线,改善区域亮度,为玄关营造神秘而又朦胧的视觉美感。

厨房


这个110㎡的奶油风之家,已经靠颜值火了


这个110㎡的奶油风之家,已经靠颜值火了


这个110㎡的奶油风之家,已经靠颜值火了

为了更巧妙的过渡空间,设计师利用玄关和厨房上方的梁作为隔断,并涂于深蓝色进行视觉提亮,增强空间和空间独立性的同时,也打破了奶油风固有的配色模式,让空间变得更有趣了。

所谓“人间烟火气,最抚凡人心”,深蓝色梁的下方是开放式、一体化的吧台操作区域,呈U型,动线流畅,配套齐全。

方便屋主下厨—烘焙—制作咖啡,也可以用来接待来客,放松休闲,为这个本就温暖的空间拓展了不少社交共享属性。

然后,考虑到家庭成员多、屋主储物需求大的情况,设计师利用了奶油薄荷绿的吊柜和地柜来增强厨房的收纳力,方便屋主收纳餐具、厨具、调味料、干货零食等多种厨房用品。

值得一提的是,U型橱柜对面除了嵌入冰箱设计,设计师还做了橄榄绿的黑板墙,方便三个孩子写写画画,记录一家人的美好时光。

客餐厅


这个110㎡的奶油风之家,已经靠颜值火了


这个110㎡的奶油风之家,已经靠颜值火了

以玄关拱形门为界,设计师为了改善原户型用餐环境,满足屋主对餐厅又大又舒适的需求,将原本位于玄关又小又暗的餐厅搬至客厅阳台,再用开放式的手法融合两个空间,优化整体采光。

而在开放式的空间内部,随着弧形吊顶流动延伸,屋主不仅有更广阔的视野范围,还有更大活动的空间。

目之所及,客厅左侧是高品质奶咖色定制沙发,配合设计师手绘装饰框画,为留白的墙面注入更多柔和可亲的气息。

奶咖色沙发对面,则是设计简洁,以半线条饰面为装饰的电视背景墙,与厨房橱柜相呼应,渲染了清新养眼的奶油薄荷绿。

空间内随处可见的弧形元素,是奶油风的重要构成元素,也是串联整个空间的重要纽带。


这个110㎡的奶油风之家,已经靠颜值火了


这个110㎡的奶油风之家,已经靠颜值火了

像客厅与餐厅之间,设计师又设计了一道用以分区、引光、装饰的弧形门洞作为隔断。

隔断下方是卡座式餐厅,在柔和的光线下呈半弧形紧贴电视背景墙,节省空间的同时,还能够容纳一家五口在此用餐互动,成为家庭温馨交流的栖息地。

深蓝色的圆形餐桌,则是对应了厨房用以隔断的深蓝色吊顶,使开放式的空间和空间可以一种更加有序的方式联系一起,配合线条流畅,设计感十足的餐椅,简直趣味性爆棚。

当然,为了满足屋主收纳空间要多的需求,设计师还在卡座坐垫下方做了充足的收纳空间,用来收纳餐厅和客厅部分的用品。

休闲阳台


这个110㎡的奶油风之家,已经靠颜值火了


这个110㎡的奶油风之家,已经靠颜值火了

安装了整片落地窗休闲阳台,除了能看到室外无限风景之外,还能最大限度引入自然光,改善餐厅、客厅、玄关、厨房等空间亮度,让整个奶油风之家更加通透且具有温情。

与落地窗相匹配的智能梦幻窗帘,不仅智能、方便,还能调节光线,满足业主对室内光线的不同述求。

同样,休闲阳台上,设计师做了嵌入式阳台柜,半开放式半封闭的设计,来满足屋主收纳需求的同时,还能在半开放式隔层放上相对应的装饰品,美化整个空间。

主卧


这个110㎡的奶油风之家,已经靠颜值火了


这个110㎡的奶油风之家,已经靠颜值火了


这个110㎡的奶油风之家,已经靠颜值火了

为了让增强整体的舒适性,设计师借用客厅部分面积扩展主卧,使其能够拥有更多的可利用空间。

然后利用奶白为空间背景色,配合咖啡色窗帘和米蓝色半墙设计,来延续整个空间柔和、优雅、明朗的基调,为屋主营造一个高品质的睡眠环境。

床尾部分设计师则是利用了扩展的面积,打造了梳妆台一体化隐形衣柜,不仅可以满足女屋主日常穿衣打扮的需求,还能满足空间的收纳需求,用于收纳衣物和床品。

主卫


这个110㎡的奶油风之家,已经靠颜值火了

主卫位于主卧门口,以白色为主要配色为屋主打造出一个干净、清爽、且视觉宽敞的卫浴空间。

并且采用了二分离设计,用玻璃隔断进行划分,洗漱区为一个区域,马桶区和淋浴房为一个区域,以提升整体实用性。

女孩房


这个110㎡的奶油风之家,已经靠颜值火了


这个110㎡的奶油风之家,已经靠颜值火了


这个110㎡的奶油风之家,已经靠颜值火了

考虑到屋主有两个双胞胎女儿,女孩房设计借用了隔壁男孩房的面积进行扩展,既满足了屋主想要两张儿童床的需求,又让两个女孩子可以拥有一个独立又舒适的睡眠空间。

空间配色仍然奶白为基调,然后用浪漫又梦幻的莫兰迪粉渲染波浪形的吊顶,灵动有趣的顶面设计,搭配造型可爱吊灯,让传统的女孩房设计也变得生动活泼了起来。

女孩房的收纳主要以床尾书桌一体化衣柜为主,相比主卧,造型更加有趣,既可以收纳,又能满足屋主两个双胞胎女儿在此学习和玩耍。

男孩房


这个110㎡的奶油风之家,已经靠颜值火了


这个110㎡的奶油风之家,已经靠颜值火了


这个110㎡的奶油风之家,已经靠颜值火了

尺度感偏小的男孩房,舒适性和时尚感却不低。设计师采用了半高型一体化榻榻米设计,床尾增加楼梯踏步,即解决了孩子睡觉问题,又解决了收纳,还满足了探索欲和好动性。

重点,床面的蓝色太空手绘背景墙,还由设计师亲自手绘,搭配时尚十足的飞机灯,除了营造童话式的意境,还能满足孩子的无限想象。

为了最大化利用空间,结合男孩房临近生活阳台的地理位置,榻榻米对面还设计了简易书桌椅,通过生活阳台的光线引入,优化男孩房的居住环境,方便孩子在自己的空间里快乐学习。

公卫


这个110㎡的奶油风之家,已经靠颜值火了

公卫主要设立在女孩房和主卧的走廊中间,整体布局与主卫相差不大,只不过是将与淋浴房相对立的马桶设计为于洗漱台相对立。

同样干净的配色,方便三个孩子还有偶尔拜访的亲戚和朋友进行使用,提高整屋的便利性。

旋转楼梯


这个110㎡的奶油风之家,已经靠颜值火了


这个110㎡的奶油风之家,已经靠颜值火了

客厅中的白色旋转楼梯,除了让上下两层空间能有个更好连接以外,设计师还希望通过简洁的弧型线条,优化空间布局,增加空间通透性。

旋转向上的设计,如同一件精心雕琢的工艺品,不仅给了孩子更多的探索空间,还为屋主一家人的生活注入了不少艺术气息。

多功能阁楼


这个110㎡的奶油风之家,已经靠颜值火了


这个110㎡的奶油风之家,已经靠颜值火了

?楼梯向上,是户型本身就自带的一个小阁楼,为了避免空间被浪费,设计先是在本身就有些异形的阁楼顶上做了弧形处理,让顶面变得流动起来,不那么压抑。

并延用楼下其它的奶白色配色进行大范围渲染,拓宽空间在视觉上的尺度。

再和屋主深入沟通之后,又将阁楼打造成儿童娱乐区、绘画区、及观影区,为屋主营造更加温馨、亲密的家庭氛围。


路过

雷人

握手

鲜花

鸡蛋

 名表回收网手机版

官网微博:名表回收网服务平台

今日头条二维码 1 微信公众号二维码 1 抖音小程序二维码 1
浙江速典奢贸易有限公司 网站经营许可证 备案号:浙ICP备19051835号2012-2022
名表回收网主要专注于手表回收,二手名表回收/销售业务,可免费鉴定(手表真假),评估手表回收价格,正规手表回收公司,浙江实体店,支持全国范围上门回收手表
返回顶部