巨奢网 首页 品牌大全 宝格丽 查看内容

宝格丽!魔都顶级奢侈品公寓出售出租,与大明星为邻!

2024-10-24 09:13| 发布者: 挖安琥| 查看: 223| 评论: 0

摘要: 请输入图片描述魔都不仅有傲视群雄的奢华酒店,还有领跑全国的酒店公寓。每月租金高达5位数起,有些市值甚至过亿,依旧常年满房!连王思聪、刘嘉玲都要包年。真富豪美少女都流行这样住。请输入图片描述请输入图片描 ...

宝格丽!魔都顶级奢侈品公寓出售出租,与大明星为邻!


请输入图片描述


魔都不仅有傲视群雄的奢华酒店,


还有领跑全国的酒店公寓。


每月租金高达5位数起,


有些市值甚至过亿,


依旧常年满房!


连王思聪、刘嘉玲都要包年。


真富豪美少女都流行这样住。

宝格丽!魔都顶级奢侈品公寓出售出租,与大明星为邻!


请输入图片描述

宝格丽!魔都顶级奢侈品公寓出售出租,与大明星为邻!


请输入图片描述


宝格丽公寓位于苏州河畔的大型商业综合项目——苏河湾,地处静安区非物质文化遗产保护的核心区,毗邻苏州河畔,将上海中心城市景观悉数纳入视野。


可俯瞰外滩和黄浦江以及上海国际金融区——浦东。被誉为“黄金湾区”的苏河湾,正日渐因其蓬勃的艺术景象而成为这座城市最具发展前景的区域。

宝格丽!魔都顶级奢侈品公寓出售出租,与大明星为邻!


请输入图片描述


上海宝格丽公寓,生意真的好,每天基本都是满房,官方报价太贵了!


位于上海宝格丽酒店5-38F(名义楼层)部分房源在2016年由热爱宝格丽品牌的高净值人士收藏,现在陆续全新交房中。目前有部分房源房东忍痛割爱出售,寻求同样追求卓越奢华居住体验的买家!不限购!不限购!不限购!另有部分房源出租中!


A:01室,163平。(中区、高区有 出租)

宝格丽!魔都顶级奢侈品公寓出售出租,与大明星为邻!


请输入图片描述


163平,1+1(bedrooms);1个餐厅1个客厅;1个客卫1个主卫;1个中厨1个西厨。


B:02室,172平。(中区、高区有 出租;中区有在售)

宝格丽!魔都顶级奢侈品公寓出售出租,与大明星为邻!


请输入图片描述


172平,1+1(bedrooms),1个餐厅1个客厅,1个客卫1个主卫,1个厨房1个洗衣间。


C、 03室,148平。(中区、高区有 出租)

宝格丽!魔都顶级奢侈品公寓出售出租,与大明星为邻!


请输入图片描述


148平,1+1(bedrooms),1个餐厅1个客厅,1个客卫1个主卫,1个厨房。


D、05室,156平。(低区、中区、高区有 出租)

宝格丽!魔都顶级奢侈品公寓出售出租,与大明星为邻!


请输入图片描述


156平,1+1(bedrooms),1个餐厅1个客厅,1个客卫1个主卫,1个厨房1个洗衣间。


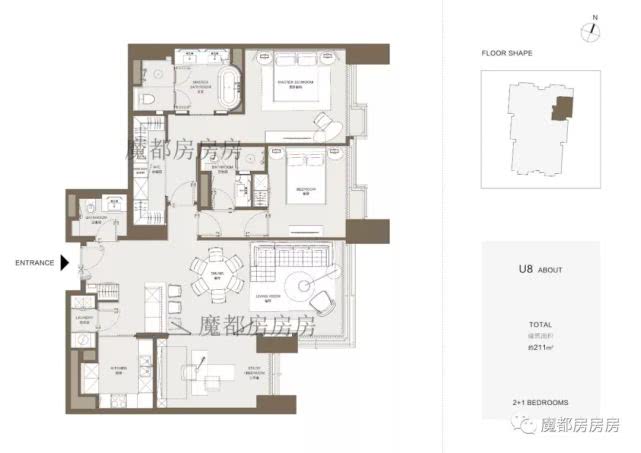
E、06室,201平(低区、中区、高区都有出租;高区有出售)

宝格丽!魔都顶级奢侈品公寓出售出租,与大明星为邻!


请输入图片描述


06室,2+1(bedrooms),1个餐厅1个客厅,1个客卫1个主卫,1个中西厨房1个洗衣间。


F、07室,256平(低区、中区、高区均有出租)

宝格丽!魔都顶级奢侈品公寓出售出租,与大明星为邻!


请输入图片描述


3(bedrooms)/2+1(bedrooms),1个餐厅1个客厅,1个客卫1个主卫1个次卫,1个中西厨房1个洗衣间。


G、08室,206平(高区有出售)

宝格丽!魔都顶级奢侈品公寓出售出租,与大明星为邻!


请输入图片描述


2+1(bedrooms),1个餐厅1个客厅,1个客卫1个主卫1个次卫,1个厨房。


H、09室,197平(高区有出租、出售)

宝格丽!魔都顶级奢侈品公寓出售出租,与大明星为邻!


请输入图片描述


2+1(bedrooms),1个餐厅1个客厅,1个客卫1个主卫1个次卫,1个厨房。


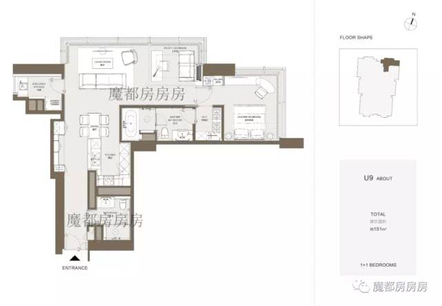
I、10室,145平(高区有出租、出售)

宝格丽!魔都顶级奢侈品公寓出售出租,与大明星为邻!


请输入图片描述


1+1(bedrooms),1个餐厅1个客厅,1个客卫1个主卫,1个中厨1个西厨。

宝格丽!魔都顶级奢侈品公寓出售出租,与大明星为邻!


请输入图片描述

宝格丽!魔都顶级奢侈品公寓出售出租,与大明星为邻!


请输入图片描述

宝格丽!魔都顶级奢侈品公寓出售出租,与大明星为邻!


请输入图片描述

宝格丽!魔都顶级奢侈品公寓出售出租,与大明星为邻!


请输入图片描述

宝格丽!魔都顶级奢侈品公寓出售出租,与大明星为邻!


请输入图片描述

宝格丽!魔都顶级奢侈品公寓出售出租,与大明星为邻!


请输入图片描述

宝格丽!魔都顶级奢侈品公寓出售出租,与大明星为邻!


请输入图片描述

宝格丽!魔都顶级奢侈品公寓出售出租,与大明星为邻!


请输入图片描述


以上景观非实际楼层仅供参考,真实效果更佳!


受宝格丽公寓业主委托,神秘、惊艳上海滩的宝格丽公寓,将首次对外出租,部分房源参考报价如下:

宝格丽!魔都顶级奢侈品公寓出售出租,与大明星为邻!


请输入图片描述


部分业主出售房源:


38**房:199.02㎡,买进价:3522.1万


29**房:208.12㎡,买进价:3024.8万


2018年6月20号,全球第6家BVLGARI宝格丽酒店式在上海正式开业。

宝格丽!魔都顶级奢侈品公寓出售出租,与大明星为邻!


请输入图片描述

宝格丽!魔都顶级奢侈品公寓出售出租,与大明星为邻!


请输入图片描述


惊喜的是,上海宝格丽酒店与其他五家(米兰、巴厘岛、伦敦、迪拜、北京)不同,融合了古典上海与现代时尚,由复兴的上海总商会与48层高的塔尖(T1)构成。

宝格丽!魔都顶级奢侈品公寓出售出租,与大明星为邻!


请输入图片描述

宝格丽!魔都顶级奢侈品公寓出售出租,与大明星为邻!


请输入图片描述


相同的是,上海宝格丽酒店,与前5家一样,细节之处,每每打动人心。

宝格丽!魔都顶级奢侈品公寓出售出租,与大明星为邻!


请输入图片描述


接送住客的玛莎拉蒂

宝格丽!魔都顶级奢侈品公寓出售出租,与大明星为邻!


请输入图片描述

宝格丽!魔都顶级奢侈品公寓出售出租,与大明星为邻!


请输入图片描述


宝石串花园

宝格丽!魔都顶级奢侈品公寓出售出租,与大明星为邻!


请输入图片描述


对,这就是前台

宝格丽!魔都顶级奢侈品公寓出售出租,与大明星为邻!


请输入图片描述


免费的、开放的、安静的图书馆

宝格丽!魔都顶级奢侈品公寓出售出租,与大明星为邻!


请输入图片描述


国内首家BVLGARI巧克力店。可以手工定制哦

宝格丽!魔都顶级奢侈品公寓出售出租,与大明星为邻!


请输入图片描述

宝格丽!魔都顶级奢侈品公寓出售出租,与大明星为邻!


请输入图片描述


如知己,喜欢吹风的露台

宝格丽!魔都顶级奢侈品公寓出售出租,与大明星为邻!


请输入图片描述

宝格丽!魔都顶级奢侈品公寓出售出租,与大明星为邻!


请输入图片描述


魔都最奢华的BVLGARI水疗中心、游泳池

宝格丽!魔都顶级奢侈品公寓出售出租,与大明星为邻!


请输入图片描述


View、味道超nice的早餐

宝格丽!魔都顶级奢侈品公寓出售出租,与大明星为邻!


请输入图片描述


47层的IL Ristorante,米其林星级餐厅名厨Niko Romito主理

宝格丽!魔都顶级奢侈品公寓出售出租,与大明星为邻!


请输入图片描述

宝格丽!魔都顶级奢侈品公寓出售出租,与大明星为邻!


请输入图片描述

宝格丽!魔都顶级奢侈品公寓出售出租,与大明星为邻!


请输入图片描述

宝格丽!魔都顶级奢侈品公寓出售出租,与大明星为邻!


请输入图片描述


住进去,不愿意再出来的客房

宝格丽!魔都顶级奢侈品公寓出售出租,与大明星为邻!


请输入图片描述


爱运动的您,怎可错过这里


免责声明:


1.本文转载自:魔都房房房


2.凡注明转载来源的文章,均为其他媒体或平台的作品,均为转载,转载目的在于传递更多信息,并不代表本平台赞同其观点和对其真实性负责,本平台不承担任何法律责任。


3.如有侵权,请及时告知删除。



路过

雷人

握手

鲜花

鸡蛋

 名表回收网手机版

官网微博:名表回收网服务平台

今日头条二维码 1 微信公众号二维码 1 抖音小程序二维码 1
浙江速典奢贸易有限公司 网站经营许可证 备案号:浙ICP备19051835号2012-2022
名表回收网主要专注于手表回收,二手名表回收/销售业务,可免费鉴定(手表真假),评估手表回收价格,正规手表回收公司,浙江实体店,支持全国范围上门回收手表
返回顶部