巨奢网 首页 名表图片鉴赏 理查德米勒 查看内容

顶级高技派事务所的中国理论 | 专访RSHP合伙人Richard Paul

2023-3-27 17:51| 发布者: 挖安琥| 查看: 114| 评论: 0

摘要: 本文转自公众号践筑集者,作者那小海罗杰斯 史达克 哈伯有限义务合伙事务所的前身是1977年创建的理查德 罗杰斯合伙事务所。经过多年的展开,于2007年更名,以肯定和感激Graham Stirk(英国伦敦列敦贺大厦写字楼的主创 ...

本文转自公众号践筑集者,作者那小海

顶级高技派事务所的中国理论 | 专访RSHP合伙人Richard Paul


罗杰斯 史达克 哈伯有限义务合伙事务所的前身是1977年创建的理查德 罗杰斯合伙事务所。经过多年的展开,于2007年更名,以肯定和感激Graham Stirk(英国伦敦列敦贺大厦写字楼的主创)和Ivan Harbour(斯特林奖获奖作品,铭琪西伦敦中心项目的主创)的出色贡献。

顶级高技派事务所的中国理论 | 专访RSHP合伙人Richard Paul


理查德.保罗身为RSHP的合伙人,有十分丰厚的国际工作阅历,担任管理世界各主要设计项目的庞大建筑师群。他也是事务所拓展亚洲业务的关键人物,目前掌管多个在中国、美国的设计项目。


他曾经是福斯特+合伙人建筑事务所董事会成员,参与过香港上海汇丰银行香港总部大楼项目,期间旅居香港数年。


关于理查德 保罗个人的设计理念


那小海:能否用案例来论述您个人遵照的主要的设计理念?


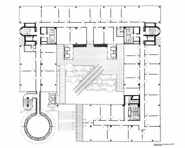
理查德 保罗:波茨坦广场项目是1990年代我们在柏林参与的项目,当时正值德国统一。项目所在地域被柏林墙穿过市中心,将城市一分为二。总体规划请求将100万平方米的城市荒地,改构成一片富有生机的复合功用开发区,并以一座新交通枢纽站为中心。

顶级高技派事务所的中国理论 | 专访RSHP合伙人Richard Paul


波茨坦广场项目 @RSHP

顶级高技派事务所的中国理论 | 专访RSHP合伙人Richard Paul


波茨坦广场老照片

顶级高技派事务所的中国理论 | 专访RSHP合伙人Richard Paul

顶级高技派事务所的中国理论 | 专访RSHP合伙人Richard Paul


波茨坦广场项目 @RSHP


总体规划研讨阶段提出灵活可变的总图框架,让波茨坦再度成为当地放射状历史街道上的焦点。一座穿过中心区域的新建线状公园构成生态链接。伦佐皮阿诺最终赢得总体规划竞赛,我们也参与设计了基地中的一系列建筑单体。

顶级高技派事务所的中国理论 | 专访RSHP合伙人Richard Paul

顶级高技派事务所的中国理论 | 专访RSHP合伙人Richard Paul

顶级高技派事务所的中国理论 | 专访RSHP合伙人Richard Paul


波茨坦广场项目 @RSHP


在柏林典型的街区限制下,我们采用了低能耗设计导则,来指导建筑几何形体以及建筑结构。建筑体东南角翻开,将日光深化有顶棚的中庭,用自然光照亮室内空间,同时提供对外视野。

顶级高技派事务所的中国理论 | 专访RSHP合伙人Richard Paul

顶级高技派事务所的中国理论 | 专访RSHP合伙人Richard Paul


波茨坦广场项目 @RSHP


建筑全年采用自然通风,分离其他对环境友好的机械技术伎俩,据测算,该建筑对比采用空调系统的建筑能够节约一半能耗。建筑表皮性能依据其日照朝向量身定做,整合不同种类的玻璃搭配不同种类的百叶,使得室内环境能够依据运用者的需求中止被动式调理。

顶级高技派事务所的中国理论 | 专访RSHP合伙人Richard Paul

顶级高技派事务所的中国理论 | 专访RSHP合伙人Richard Paul


世贸中心3号塔楼 #RSHP


世贸中心3号塔楼综合体位于格林威治街道175号,这里是纽约世贸复兴地块的中心区域,正对世贸双子塔留念文化中心,留念地周围高楼林立。任务书请求设计一栋总面积280万平方英尺的超高层商业建筑,裙房部分为批发区。

顶级高技派事务所的中国理论 | 专访RSHP合伙人Richard Paul

顶级高技派事务所的中国理论 | 专访RSHP合伙人Richard Paul


世贸中心3号塔楼 #RSHP


建筑的低层裙房部分包含商业和买卖区,高层塔楼部分为办公。沿街部分的三面都是批发,购物者能够自如穿行于地上三层、公开两层共五层的购物空间。

顶级高技派事务所的中国理论 | 专访RSHP合伙人Richard Paul


世贸中心3号入口处效果图 #RSHP


相邻的科特兰街和戴伊街是景观步行区,成为生机公共空间的一部份,使行人自如的从市区东侧渗透过来并一路接抵达留念区。塔楼的17、60和76层设计室外露台,其中76层露台是曼哈顿最高的办公露台。这三座露台总共为塔楼租户发明了11000平方英尺充沛绿化的室外空间,为租户提供绿意盎然的环境。

顶级高技派事务所的中国理论 | 专访RSHP合伙人Richard Paul


世贸中心3号塔楼空中露台 #RSHP

顶级高技派事务所的中国理论 | 专访RSHP合伙人Richard Paul


理查德 保罗在世贸中心3号塔楼空中露台


那小海:能否分享您分别就职于福斯特事务所和RSHP事务所的阅历,是由于他们都是高技派的代表么?


理查德 保罗:我的职业生活的前8年都在福斯特事务所。回想我21岁时,那时分十分想为理查德罗杰斯先生工作。回想我的大学作品集,能够看出一切的设计都深受理查德的理论所影响。必须招认,我大学期间被这两个公司建筑工业化的先进做法深深入迷。

顶级高技派事务所的中国理论 | 专访RSHP合伙人Richard Paul

顶级高技派事务所的中国理论 | 专访RSHP合伙人Richard Paul

顶级高技派事务所的中国理论 | 专访RSHP合伙人Richard Paul


蓬皮杜中心 #RSHP


在那个时期,预制化技术多应用于汽车制造工业,而非建筑行业。我记得当我第一次看到关于蓬皮杜中心的文章,我诧异于这种性质的建筑怎样能在基本上是历史古城的市中心建成。

顶级高技派事务所的中国理论 | 专访RSHP合伙人Richard Paul


IRCAM新闻发布会。从左到右Pierre Boulez, Robert Bordaz. Richard Rogers.Renzo Piano.

顶级高技派事务所的中国理论 | 专访RSHP合伙人Richard Paul


中标计划的模型

顶级高技派事务所的中国理论 | 专访RSHP合伙人Richard Paul


最初计划


两家公司在建筑理论的手法和言语上有很大的共性。理查德和诺曼在纽黑文耶鲁大学求学期间,保罗·鲁道夫的指导给他们都产生了不可磨灭的影响。

顶级高技派事务所的中国理论 | 专访RSHP合伙人Richard Paul


诺曼 福斯特 和 理查德 保罗


既然我职业生活的前半段都在福斯特事务所渡过,主要在香港参与香港银行总部和上海银行总部项目,自但是然就转到理查德罗杰斯事务所,这是我们当时的称号。

顶级高技派事务所的中国理论 | 专访RSHP合伙人Richard Paul


理查德 保罗


那小海:什么吸收你不时参与亚太和中国的项目,并成为该区域的担任人?


理查德 保罗:我一抵达香港,就爱上亚洲文化的生机氛围。我职业生活的最初5年是在香港渡过的,不同于从小长大的伦敦东区的环境,我深深陶醉于截然不同的文化差别,一切都是崭新的,生活节拍很快,人们从不糜费时间。而在项目上,我们年岁悄然就被赋予庞大的义务,所以每个人都努力工作,纵情游玩。


从旅居香港开端,我的生命就与亚洲产生千丝万缕的联络,亚洲和中国充溢庞大的能量,而且充溢达观希望。人人怀揣着“能行”的惊人态度,真有心想事成的觉得。身处其中,并看着社会面对一日千里的环境如何顺应、如何改动,真是一段十分享用的阅历。

顶级高技派事务所的中国理论 | 专访RSHP合伙人Richard Paul


香港口岸旅检大楼 #RSHP

顶级高技派事务所的中国理论 | 专访RSHP合伙人Richard Paul


北京新国际机场竞赛 #RSHP


那小海:您对年轻建筑师的倡议。


理查德 保罗:勇于应战,勇于表白,说不定会有意想不到的结果。当我还是这间事务所年轻建筑师的时分,事务所最棒的中央就是给年轻人有机遇说出自己的点子和想法。你永远不知道什么时分灵光一现,好主见就冒出来了。我们合伙人最重要的工作,就是鼓舞年轻成员能够毛遂自荐的表白观念,而不会觉得被压制着,而且要去营造这样的氛围。我们很侥幸能具有一群聪明有才干的年轻人,他们需求长大健壮,我们就要给他们发明机遇。

顶级高技派事务所的中国理论 | 专访RSHP合伙人Richard Paul

顶级高技派事务所的中国理论 | 专访RSHP合伙人Richard Paul


RSHP工作室 #RSHP


关于中国市场


那小海:能否分享RSHP如何逐步进入中国市场,并在理论中逐步了解当地的文化和哲学,并引见一下近期中止中的项目。


理查德 保罗:我以为设计公司进入中国市场,常常直接沿用以往参与其他市场的常规方式。我以为中国在这方面是不同的。


我以为我们学到惨痛的经验,时间教我们的设计要坚持更大的灵活性,参与项目进程的时间更长。同时,提供一系列计划,给设计方和甲方有充沛的时间沟通成熟。与整个开发团队对话十分关键,这样才能够让整个团队行进的步伐分歧。

顶级高技派事务所的中国理论 | 专访RSHP合伙人Richard Paul


商业开发项目 #RSHP

顶级高技派事务所的中国理论 | 专访RSHP合伙人Richard Paul


MUCFC总部大楼 #RSHP


有些公司假如不了解当地文化,就采取一种对立的态度,这显然在亚洲,特别是中国行不通。处置问题的措施很多,总是能够找到正确的途径处置问题随着阅历累积,我们往常越来越了解这里的市场了。


宁波东部新城门户区住宅是我们在国内的第一个项目。它包含两个相同的双塔,分别在宁波东部门户区意味中心轴的中心水体两侧。建筑楼体在剖面战争面上都有偏离,以提供公寓最大化的视野。第二栋塔楼目前在施工中。我们在这个首个项目中学到了中国的开发流程。

顶级高技派事务所的中国理论 | 专访RSHP合伙人Richard Paul

顶级高技派事务所的中国理论 | 专访RSHP合伙人Richard Paul

顶级高技派事务所的中国理论 | 专访RSHP合伙人Richard Paul


宁波东部新城门户区住宅 #RSHP


上海万科中兴路一号项目十分有意义,由于主要是大型住宅树立,而且我们希望借此让上海这个区域改头换面。项目处于黄金地段,周围其他项目陆续开发,使基地周边环境变更疾速。中兴路一号位于这个更新区域的中心位置,我们经过总图规划,在中间构成一片惠及一切住户的绿地空间。整片塔楼构成明晰而富有变更的天际线,这是为了满足基地北侧建筑复杂的采光和日照请求。

顶级高技派事务所的中国理论 | 专访RSHP合伙人Richard Paul


中兴路一号总图计划设计 #RSHP

顶级高技派事务所的中国理论 | 专访RSHP合伙人Richard Paul


中兴路一号效果图 #RSHP


塔楼位置构成了朝南面和浦东方向的视野最优化,同时保障了一切单元的自然采光极大化,并且大多数单元的客厅都有两面对外视野。外圈商业裙房的屋顶布置抬高的绿色步行道,一切住户都能够经过这条步道直达会所。人们经过这里,能够有开阔的视野俯瞰中央绿化公园。

顶级高技派事务所的中国理论 | 专访RSHP合伙人Richard Paul


中兴路一号会所效果图 #RSHP

顶级高技派事务所的中国理论 | 专访RSHP合伙人Richard Paul


中兴路一号内部庭院效果图 #RSHP

顶级高技派事务所的中国理论 | 专访RSHP合伙人Richard Paul


中兴路一号立面效果图 #RSHP


会所位于基地东边尽端,构成项目的中心标记性建筑。大气的悬臂式雨棚在临街侧构成显著的入口。而在公园一侧,则布置了一系列的室外露台,使景观视觉上无缝的漫入室内,配套设备也和绿化相连,在忙碌的大都会发明了宁静放松的小天地。

顶级高技派事务所的中国理论 | 专访RSHP合伙人Richard Paul


中兴路一号俯瞰效果图 #RSHP(均为早期效果图,仅供参考,后期有调整)


建筑外墙采用彩色的资料,给每栋建筑赋予共同标签,同时给整个环境带来生机。我们从色谱相衬的色系中精心选择,选出能够全面套用而不违和的颜色。

顶级高技派事务所的中国理论 | 专访RSHP合伙人Richard Paul

顶级高技派事务所的中国理论 | 专访RSHP合伙人Richard Paul


石门一路塔楼 #RSHP


我们正在参与上海石路径一个商业项目。图示为招标阶段的计划。目前项目在报批阶段。基地处于城市的中心位置,使该建筑在城市肌理中具有得天独厚的标记性,特别由于地块与历史建筑张园构成紧密的关联。

顶级高技派事务所的中国理论 | 专访RSHP合伙人Richard Paul


石门一路塔楼 #RSHP


设计理念与伦敦列敦贺大厦异曲同工,主要商务楼的大堂被抬高,最大限度发明底层渗透性供人通行。设计必须降低裙房低层尺度的视觉感,才干和周边维护建筑构成相融的关系,这点尤为重要。设计依旧在演化中,所以这只是目前的表示图。项目胜利的关键在于建筑底层和周边公共环境的整合,由于这会构成通往前方张园的入口。


我们正参与一系列的深圳和前海的项目。包含整个开发片区公共景观区的城市客厅总体规划,以及一系列商业和住宅塔楼的设计竞赛。

顶级高技派事务所的中国理论 | 专访RSHP合伙人Richard Paul


城市客厅总体规划 #RSHP

顶级高技派事务所的中国理论 | 专访RSHP合伙人Richard Paul

顶级高技派事务所的中国理论 | 专访RSHP合伙人Richard Paul

顶级高技派事务所的中国理论 | 专访RSHP合伙人Richard Paul

顶级高技派事务所的中国理论 | 专访RSHP合伙人Richard Paul


城市客厅总体规划 #RSHP


我们为开发商建韬设计的位于深圳前海的超高层商务楼正在施工中。中心筒位于建筑一侧,构成单一统合的大面积楼面,优先思索开放楼板,并且对外远眺大湾区。

顶级高技派事务所的中国理论 | 专访RSHP合伙人Richard Paul

顶级高技派事务所的中国理论 | 专访RSHP合伙人Richard Paul


前海建韬超高层商务楼 #RSHP


建筑有激烈的结构表示,塔楼垂直方向被一系列空中花园切分,周边四根柱子之间有庞大的桁架衔接。这种体系允许悬吊楼板,把结构构件关于楼面的开放空间的影响降到最小。

顶级高技派事务所的中国理论 | 专访RSHP合伙人Richard Paul


前海建韬超高层商务楼 #RSHP


名义皮百叶依据建筑的不同朝向分别优化,同时保障了最大化的透明度。项目不久前开端施工,我们等候它不只是前海更是深圳特殊的标记性建筑。

顶级高技派事务所的中国理论 | 专访RSHP合伙人Richard Paul


由于疫情影响,原定的当面采访改为网络采访。所以,只能用这样的“合影”了。十分等候与理查德 保罗先生的会面。



路过

雷人

握手

鲜花

鸡蛋
已有 0 人参与

会员评论

 名表回收网手机版

官网微博:名表回收网服务平台

今日头条二维码 1 微信公众号二维码 1 抖音小程序二维码 1
浙江速典奢贸易有限公司 网站经营许可证 备案号:浙ICP备19051835号2012-2022
名表回收网主要专注于手表回收,二手名表回收/销售业务,可免费鉴定(手表真假),评估手表回收价格,正规手表回收公司,浙江实体店,支持全国范围上门回收手表
返回顶部